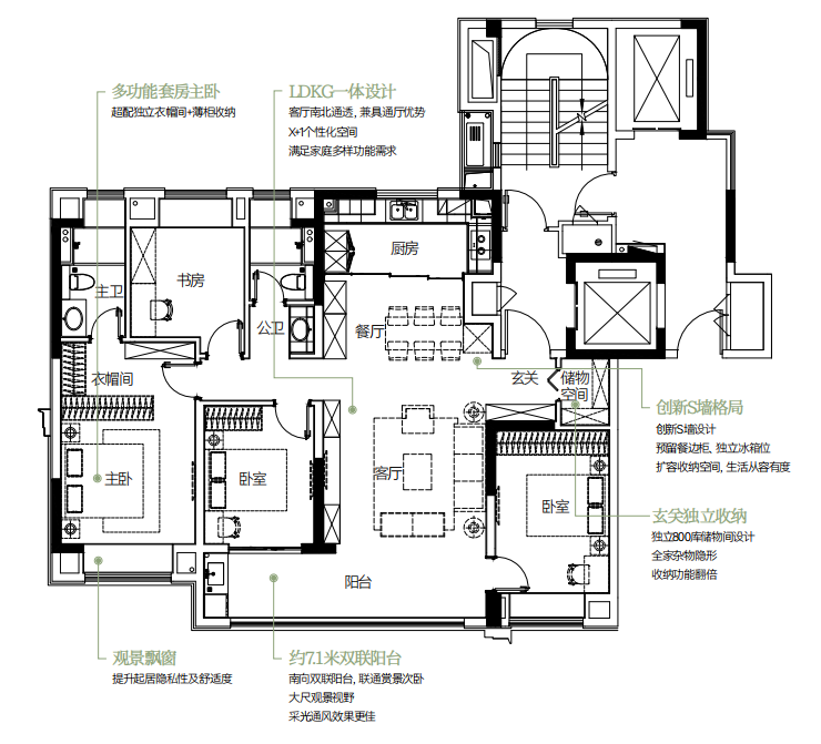
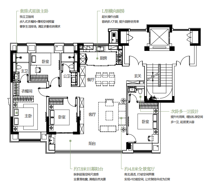
2月12日,南通主城更新标杆 锦鸿府 , 提前16天、在春节前 迎来交付。 从建筑颜值到产品品质,从承诺兑现到服务体验,锦鸿府以一场全方位超越期待的交付呈现,为业主献上一份温暖的新年贺礼。 自入市以来,锦鸿府凭借卓越品质与扎实口碑持续热销。新春到来之际, 项目应市加推11号楼建面约143㎡爆款产品。 全实景现房,品质眼见为实!今年买今年住,安家无需等待! No.1 国企护航 超前兑现 锦鸿府交房现场服务力爆棚 锦鸿府以“国企品质+国企速度”让业主提前抵达美好生活,这份“超前兑现”的底气,源于 崇川国投 与 万科代建 的双重品牌背书。 强大的国资背景确保了项目资金稳健与建设进度,而深谙南通市场的万科则注入了成熟的开发体系与严格的品控标准,双强联手为产品力与兑现力奠定坚实基础。 交付现场, 归家的尊崇感 自踏入社区第一步便悄然流淌。工作人员统一着装,佩戴喜庆红色围巾,以专业姿态与温暖笑容列队恭迎。园区装点精心,归家礼饱含心意,共同铺就一段充满仪式感的归家旅程。 交付全程温馨、便捷、高效!从费用缴纳、资料移交,到礼品领取、实地验房,均由专职人员在固定区域协调办理, 免除业主奔波,真正实现“一站式”服务闭环。 不仅如此!项目还特别推出 “3V1”专属验房模式 ——由验房工程师、客户服务专员、销售顾问组成三人服务小组,全程陪同业主查验新居, 确保问题即时响应、专业解答。 未来, 连续十年蝉联“中国物业服务百强企业综合实力TOP1”的万科物业 ,将凭借深耕南通十余年的本地化服务经验,为锦鸿府业主提供高品质专业服务。 No.2 高颜值与高品质并存 城芯低密生活 所见即所得 提前交付印证了国企的实力与担当,而社区实景的高分呈现,则是对未来生活的生动诠释。 约40.8米超长檐口、近60米景墙序列、14米高空屋檐 构筑的社区主入口,不仅彰显出大宅门仪,亦革新了主城界面。 约1.78低密容积率 ,将更多空间让渡给自然风景。巧妙融入的 二十四节气代表性植物 ,让四季更迭的风景成为日常生活的背景。 精心栽植逾50种珍选植被品类 ,营造视觉、听觉、嗅觉交织的多维沉浸式自然体验。生活于此,推窗见绿,下楼入园,静谧森居触手可及。 匠心打造的架空层泛会所,规划 “植物伴盒、童玩伴盒、学习伴盒” 三大主题空间,并配置 棋牌室、康养区、健身房 等休闲场所,满足全龄段业主的休闲、娱乐、社交需求。 从交付现场的细致服务,到实景园区的高颜值与高品质,锦鸿府以眼见为实兑现美好承诺。随着社区交付, “盒子空间”主理人招募计划同步启动 ,邀请业主共同参与社区营造,让家园持续焕发温度与活力。 No.3 爆款产品 应市加推 实景现房今年买今年住 市场的认可,是产品力最公正的背书。 锦鸿府入市以来持续热销,源于其对主城改善人居需求的深刻洞察以及对产品的精细打磨。 适逢新春置业潮,项目应市加推爆款产品——11号楼建面约143㎡小高层 该户型为 四室两厅两卫 格局,整体方正通透,动线清晰合理,无冗余面积浪费,在空间利用方面表现尤为出色。 活动区 LDKG一体化 设计 ,延展公共区域尺度,营造开阔明亮的居家空间; 约7.1米南向双联阳台 ,引光纳景舒展心境; “X+1”灵动空间 ,可根据家庭成长自由定义,承载多种生活可能。 休憩区三卧朝南, 主卧套房 配置独立卫浴+步入式衣帽间+观景飘窗,构筑私密尊享空间; 南向双次卧均与阳台相连 ,日常起居时刻沐浴在自然光景之中。 空间利用处处见巧思! 玄关增设独立收纳区 ,归家井然有序;餐厅借助 S墙创新设计 ,预留出冰箱位、餐边柜、咖啡角等个性角落,为生活注入更多仪式感与趣味性。 新品加推之际,锦鸿府另一口碑之作——7号楼建面约143㎡洋房,目前仅余极少量席位,珍藏机遇不容错过! 该洋房户型以 四室两厅三卫 的朗阔格局,实现了舒适性、功能性与空间感的多维跨越,自入市以来持续热销,已成为主城多代共居家庭的必看选项。 南向四开间布局 + 约7.8米巨幕阳台+多飘窗设计 ,采光、通风、视野多维跃升; 约4.8米全景宽厅 结合 LDKG一体化 设计,打破空间界限,塑造奢阔敞亮的家庭社交场域。 ▲约143㎡洋房居家生活体验馆 为满足多代共居的舒适度与私密性,该户型特别规划 双套房格局 ,主卧套房与 配备独立卫浴的长者套房 分设两端,多代同堂生活彼此关照又互不干扰。 整体而言,该户型 面宽优越、尺度从容、功能完善 ,无论是三代同住还是多胎家庭,皆能于此找到和谐共处的理想范本。 ▲约143㎡洋房居家生活体验馆 除以上两大明星户型外,锦鸿府还备有建面约105㎡三室两卫、建面约125㎡四室两卫、建面约165㎡四室三卫等多重产品线, 全面覆盖从初次进阶到深度改善的多样化需求。 约125㎡四室两厅两卫 该户型采用 “3+1”灵动布局 ,北向两个房间可合可分,可规划为长辈套房、成长型儿童房、工作室、娱乐室等,从容适应家庭在不同成长阶段的多样需求。 约165㎡四室两厅三卫 该户型更是以 约8.4米全景双联阳台、LDKG一体化厅堂、豪华双套房、独立储物间、超尺度玄关鞋柜 等超配设计,回应主城高净值家庭对空间尺度与生活仪式感的进阶追求。 写在最后 从蓝图到实景,从承诺到兑现,锦鸿府以一场超越期待的交付,为主城人居树立标杆。如今,所有美好皆已如实呈现,品质触手可及,理想生活即刻启幕。 对于追求品质、珍视时间的改善家庭而言,选择这样一处 “所见即所得、今年买今年住” 的实景现房,无疑是当下稳健而明智的安居之选。 新春启程,安家正当时!主城改善理想家——锦鸿府,以全维高品质,为您启幕美好生活! 免 责 声 明 本文提及的项目信息可能发生变化,请以商品房销售许可证、《商品房买卖合同》等文件为准; 本文所有文字、图片、数据信息等仅供参考,不作为要约或承诺,具体信息请咨询项目售楼处。 ---本文为广告---












